Vai al contenuto

Carolina Vecchioni Architettura

  • Contatti
  • About
  • PROGETTI
    • APPARTAMENTI
    • RESTAURO
    • NEGOZI E RISTORANTI
    • UFFICI E STUDI PROFESSIONALI

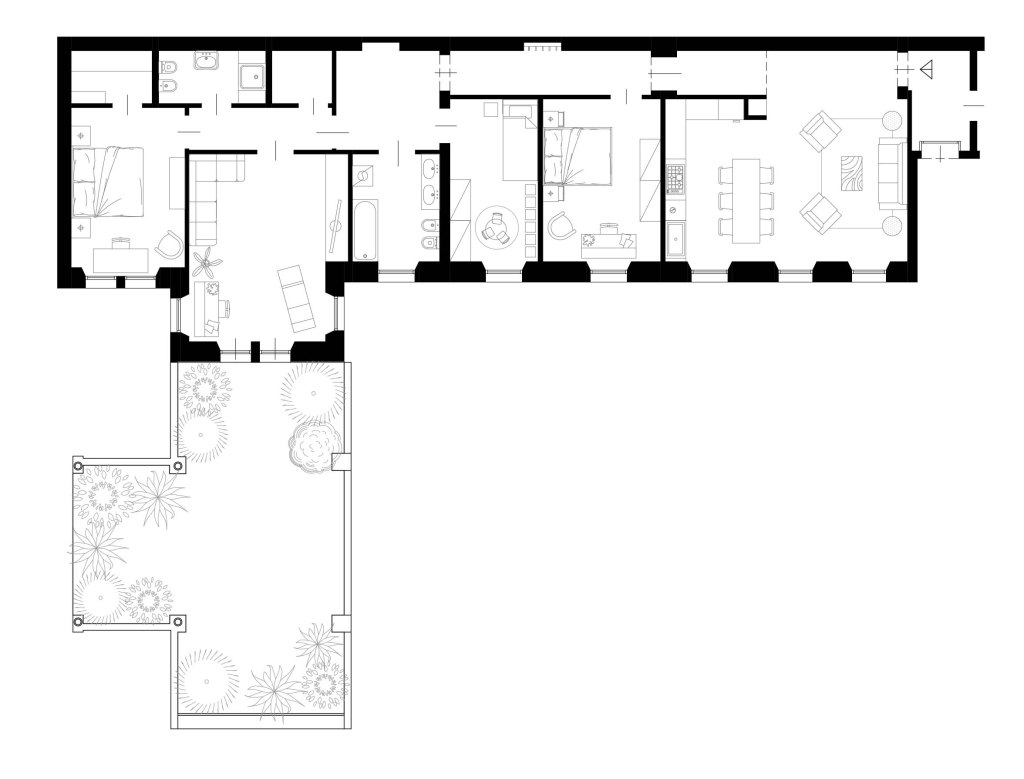
Una casa milanese

Ristrutturazione appartamento 200 mq (Milano, 2020)

Progetto architettonico e direzione lavori: Carolina Vecchioni

Condividi:

  • Condividi su X (Si apre in una nuova finestra) X
  • Condividi su Facebook (Si apre in una nuova finestra) Facebook
Mi piace Caricamento...

Ricerca

Crea un sito web o un blog su WordPress.com
    • Carolina Vecchioni Architettura
    • Registrati
    • Accedi
    • Copia shortlink
    • Segnala questo contenuto
    • Gestisci gli abbonamenti

Caricamento commenti...

    %d